mobile-menu open
  • Our homes Open menu
  • How it works Open menu
  • What we do Open menu
  • Who we are Open menu
  • News & events
phone number (08) 6325 7700 Contact us email contact button

Accessibility Toolbar

We've got the keys to a dwelling you'll love
Your best life with Nesti begins here
Meet the people making your happiest home life happen
Mandurah See the area
2 bed
2 bath
1 car
High Physical Support
Designed with advanced features for people with very high support needs, like ceiling hoists or backup power.
Improved Liveability
Step-free, open design with features that make all areas easy to access for wheelchair users.
Mandurah See the area
2 bed
2 bath
1 car
High Physical Support
Designed with advanced features for people with very high support needs, like ceiling hoists or backup power.
Improved Liveability
Step-free, open design with features that make all areas easy to access for wheelchair users.

Premium 2-Bed, 2-Bath Suite – Sole Occupancy Welcome – Move-In Ready

Jump to section

About this home

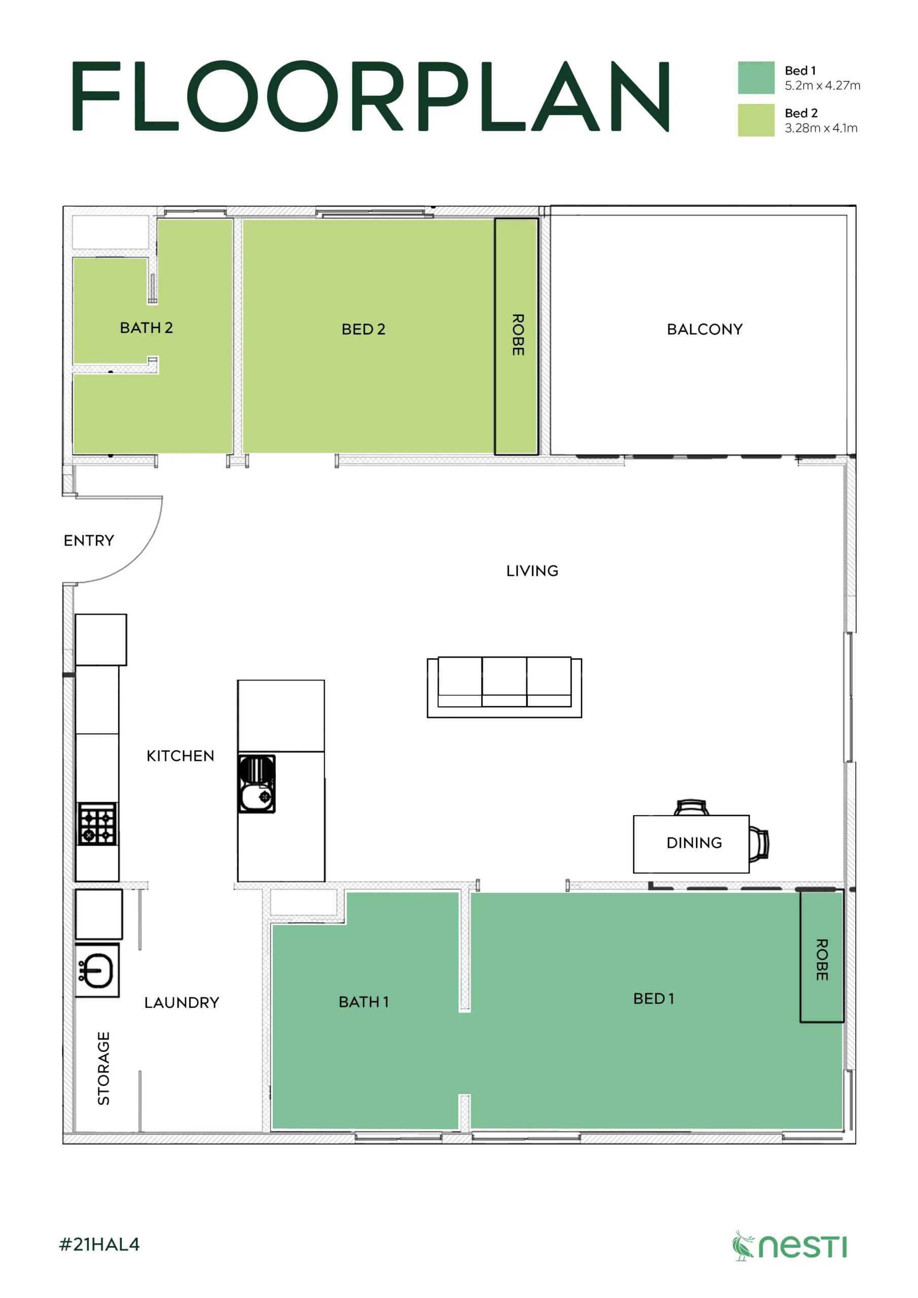
This spacious 134sqm High Physical Support / Fully Accessible SDA apartment offers premium sole occupancy living within a secure, boutique 4-unit complex in Mandurah.

Fully furnished and move-in ready (including washer, dryer, fridge/freezer and accessible-height dishwasher), the apartment is ideally suited to hospital discharge placements, participants requiring additional equipment storage, or individuals seeking flexible use of a second bedroom for therapy, sleepover support or family accommodation.

Located within a secure, controlled-access complex featuring gated entry, facial recognition building access and automated internal doors, the property combines high-level SDA functionality with a spacious, non-institutional environment. Key features

  • 134sqm internal layout – one of the largest apartments in the complex
  • Sole occupancy permitted (HPS or FA appropriately funded)
  • Fully furnished, including washer, dryer, fridge/freezer and accessible-height dishwasher
  • 3 months’ Reasonable Rent Contribution waived to assist relocation
  • Dedicated private onsite storeroom suitable for mobility aids and medical equipment
  • Primary bedroom includes structural provision for ceiling hoist installation (hoist not supplied)
  • Extra-wide 1250mm internal door openings to enhance internal manoeuvrability
  • Reinforced bathrooms designed for assistive equipment
  • Motorised height-adjustable kitchen benchtop supporting seated and standing use
  • Assistive technology wiring infrastructure installed
  • Flexible second bedroom (therapy room, sleepover support, family/friend use)
  • Lift access (SDA compliant and certified)
  • Secure undercover parking for one vehicle
  • Secure, controlled-access complex with facial recognition entry
  • Onsite Overnight Assistance (OOA) active
  • Boutique 4-unit complex (non-institutional setting)
  • Private outdoor balcony (approx. 5–6sqm) with seating
  • Fully air conditioned with individual split-system units to each room
  • MTA placements considered
  • SIL flexibility – not provider-locked (participants may engage their preferred SIL provider, subject to suitability)

Property features

Internal
  • Dedicated storage
  • Ceiling hoist provision
  • Accessible-height dishwasher
  • Height adjustable bench-tops
  • Individually controlled air conditioning
  • Spacious open-plan layout
  • Fully furnished
External
  • Established active onsite supports
  • Secure undercover parking
  • Lift access
  • Facial recogntion on entry
  • Private outdoor balcony
  • MTA placements considered

Location

Mandurah: South West
View in Google Maps
Mandurah
Features and services
Once a small fishing village, Mandurah has evolved into the heart of the Peel district; a thriving regional city and popular tourist destination.
  • Peel Health Campus & GP clinics
  • Shopping at Mandurah Forum
  • Mandurah Train Station
Lifestyle spotlight
Ideal for a seachange destination, with a foreshore that has it all - even dolphins splashing along the cove.
  • Mandjar weekly markets
  • Famous Christmas light trail
  • Birdwatching at Creery Wetlands
  • Outdoor sculpture trail

Details

Property ID: #21HAL4
Estimated moving date
01/11/2025
Support
Flexible Choice
Occupancy
1 or 2 vacancies
No homes found with the same location.